PROJEKTI: STAMBENI / STAMBENO POSLOVNI / POSLOVNI OBJEKTI / UNUTARNJE UREĐENJE / KRAJOBRAZI / GOSPODARSKI OBJEKTI / OBRAZOVANJE / JAVNE USTANOVE

POSLOVNI OBJEKTI: AUTO JAMBRIŠAK / ERA KARLOVAC / ILOK BUNGALOVI / KERAMIKA NOVAK / PAGO I KOLINSKA / ZGRADA SAMOBORSKA / ZGRADA ZAGREB / TISKARA / TVORNICA HRANE / VINSKA AKADEMIJA  / CENTAR ZA RAZVOJ ENO-GASTRONOMSKE KULTURE

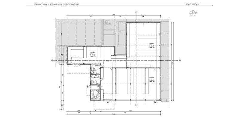
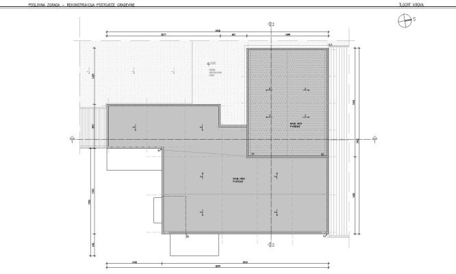
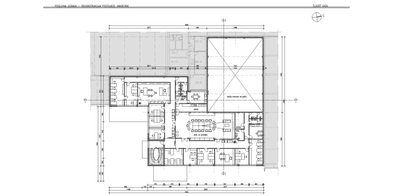
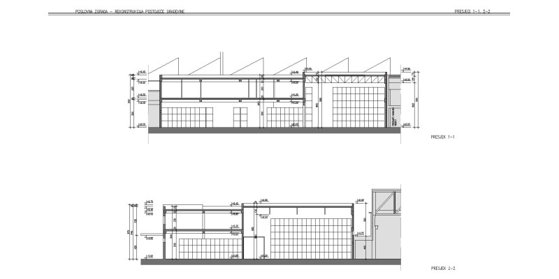
POSLOVNA ZGRADA E