PROJECTS: RESIDENTIAL / COMMERCIAL RESIDENTIAL / COMMERCIAL / INTERIOR / LANDSCAPE  /  UTILITY BUILDINGS

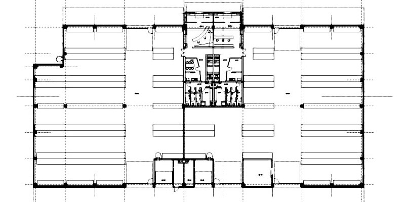
COMMERCIAL PROJECTS: SHOWROOM AUTO JAMBRIŠAK / EXTERIOR ERA KARLOVAC / COMMERCIAL BUILDING / ILOK BUNGALOWS / KERAMIKA NOVAK / PAGO AND KOLINSKA / BUILDING SAMOBORSKA / COMMERCIAL BUILDING ZAGREB / PRINTING PRESS / FOOD FACTORY / WINE ACADEMY

PAGO AND KOLINSKA