PROJECTS: RESIDENTIAL / COMMERCIAL RESIDENTIAL / COMMERCIAL / INTERIOR / LANDSCAPE  / UTILITY BUILDINGS

RESIDENTIAL PROJECTS: HOUSE 1 / HOUSE 2 / HOUSE B / HOUSE H / HOUSE P  / APARTMENT ZAGREB / FAMILY HOUSE ZAGREB / RESIDENTIAL BUILDING BOROVJERESIDENTIAL BUILDING G.VITEZA / HOUSE N 

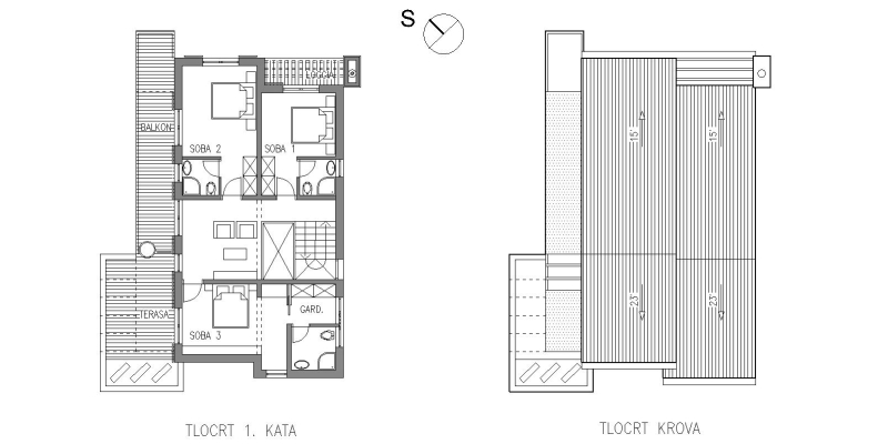
HOUSE 1