PROJEKTI: STAMBENI / STAMBENO POSLOVNI / POSLOVNI OBJEKTI / UNUTARNJE UREĐENJE / KRAJOBRAZI / GOSPODARSKI OBJEKTI / OBRAZOVANJE / JAVNE USTANOVE

STAMBENI OBJEKTI: KUĆA ZA ODMOR / KUĆA ZA ODMOR 2 / KUĆA B / KUĆA H / KUĆA P / NADOGRADNJA STANA ZAGREB / OBITELJSKA KUĆA ZAGREB / STAMBENA ZGRADA BOROVJE / STAMBENA ZGRADA G.VITEZA / KUĆA N / KUĆA BABONIĆEVA / KUĆA OGULINSKA

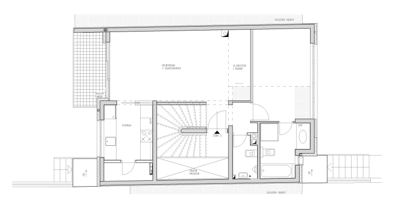
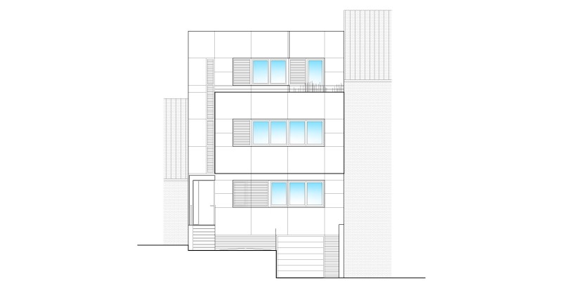
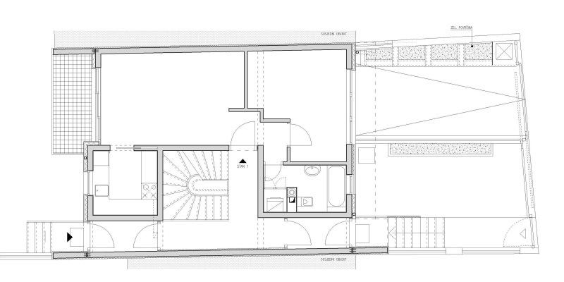
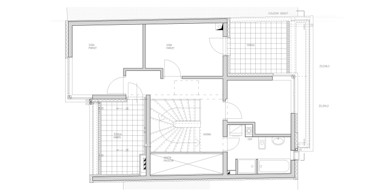
OBITELJSKA KUĆA ZAGREB