PROJECTS: RESIDENTIAL / COMMERCIAL RESIDENTIAL / COMMERCIAL / INTERIOR / LANDSCAPE / UTILITY BUILDINGS

RESIDENTIAL PROJECTS: HOUSE 1 / HOUSE 2 / HOUSE B / HOUSE H / HOUSE P / APARTMENT ZAGREB / FAMILY HOUSE ZAGREB / RESIDENTIAL BUILDING BOROVJE / RESIDENTIAL BUILDING G.VITEZA / HOUSE N

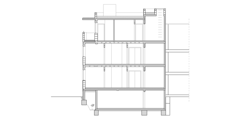
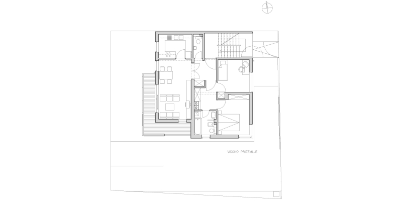
RESIDENTIAL BUILDING G.VITEZA